Mairie / Vignemont
Construction d'une nouvelle mairie
Vignemont (60)
Commune de Vignemont (60)
AMO : ADTO - SAO
VISATECH Architecture
DIATECHNIE BET Fluides
495 000 € HT
174 m2
PRO en cours
RE2020
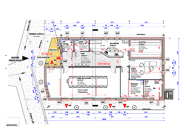
Le projet est de créer un nouveau bâtiment de plain-pied pour y accueillir la mairie. Celle-ci se trouvant actuellement sur la parcelle voisine avec l’école. Une ouverture sera créée sur le mur mitoyen entre l'école et la nouvelle mairie par un portillon afin de permettre un accès PMR des élèves vers l'école. Le parvis servant d’espace urbain de représentation et d’accueil à la Mairie et à l’Ecole.
Le bâtiment sera implanté dans l’axe Nord-Ouest Sud-Est, avec la façade principale ouverte sur la route. Cette implantation permettra de visualiser le nouveau bâtiment et d’y accéder plus facilement.
Le bâtiment est constitué d’un hall d’accueil, d’un secrétariat ouvert sur le hall, d’une salle de conseil, du bureau du Maire, et de locaux annexes (tisanerie, local archives, local ménage, sanitaire PMR, local technique).
Le volume est simple, à rez-de-chaussée, recouvert par un toit à deux pentes. Il reprend le langage rural simple tout en présentant une façade travaillée. Les jeux de pans parallèles et désaxés invitent naturellement à l’entrée.
La salle de conseil s’ouvre au sud. La façade est ouverte généreusement sur la plaine. Les manifestations peuvent profiter des espaces extérieurs. Toute la façade est protégée de l’ensoleillement et des intempéries par une avancée de toit. Elle est supportée par des poteaux qui ont des assises en pied.



