Logements / Crevecoeur-le-Grand
Démolition et construction de 4 logements collectifs et 10 logements individuels
Crevecoeur-le-Grand (60)
SA HLM de l'Oise
VISATECH Architecture
Xavier Simonneaux / Architecte
DIATECHNIE BET Fluides et thermique
ERIBOIS BET Structure
AREA BET VRD
ACOUCIBE Acoustique
2 141 672 € HT y compris démolition + VRD
1150 m2
Phase DETen cours
Mission de base
RE 2020 + NF Habitat
Cette opération participe au renouvellement et la dynamisation du centre-bourg de Crèvecœur-le-Grand. Le terrain est aujourd’hui occupé par une maison individuelle et d’anciens entrepôts, traces d’une exploitation artisanale. Auparavant, les lieux devaient être occupés par une ferme : il en reste quelques traces, comme un pigeonnier, qui seront conservés et mis en valeur.
La déconstruction permettra le réemploi des briques.
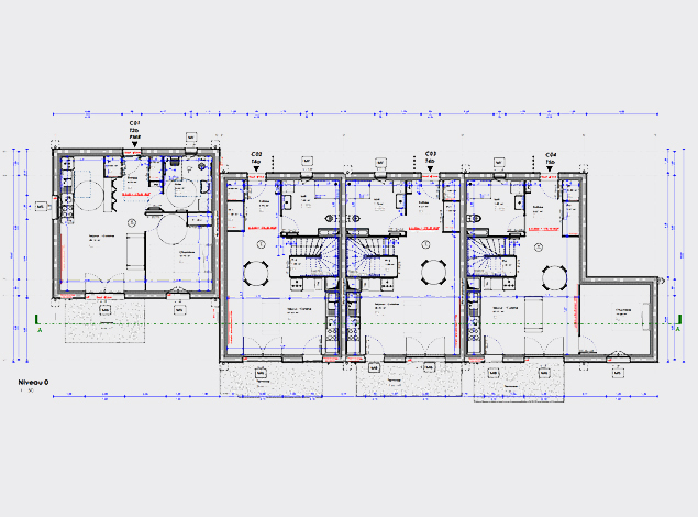
Le projet se fera en deux phases pour construire dans un premier temps les 4 logements collectifs et 8 maisons individuelles. Le locataire actuel sera relogé dans ces nouvelles constructions. En dernier aura lieu la déconstruction de la maison existante et la construction des deux maisons individuelles sur rue.
L’opération créée un espace intérieur partagé, qui assure le stationnement des VL et des vélos, la gestion des EP et un espace de convivialité. Cet espace restera privatif. Le chauffage est assuré par une production collective à base de granulés bois. Chaque logement a son espace extérieur privatif.



